Villa singola in vendita

Ascoli Piceno, Frazione Monticelli - Ascoli Monticelli
€ 280.000
11 locali 11 locali
394 Mq 394 Mq
6 bagni 6 bagni

Villa singola in vendita

Ascoli Piceno, Frazione Monticelli - Ascoli Monticelli

Descrizione annuncio

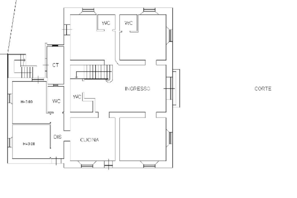
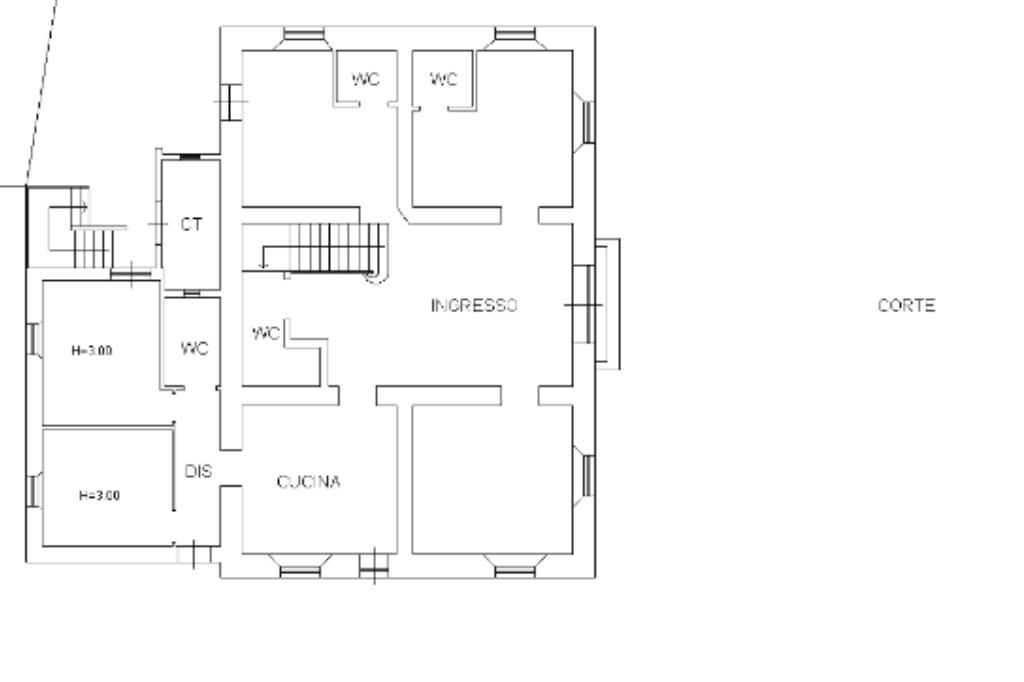
A Monticelli proponiamo in vendita un’ampia villa indipendente sviluppata su tre livelli, ideale per famiglie numerose, strutture ricettive o investimento.

L’ingresso al piano terra si apre su un ampio disimpegno che conduce alla cucina e a cinque camere, servite da quattro bagni.

Salendo la scala interna, al primo pianerottolo si accede a un ampio terrazzo e a un balcone, spazi esterni perfetti per momenti di relax.

Il piano superiore ospita ulteriori cinque stanze e due bagni, mentre l’ultimo livello è composto da quattro camere da letto e altri due bagni.

Grazie alla generosa metratura e alla distribuzione degli ambienti, l’immobile si presta a molteplici soluzioni abitative o professionali.

Soluzione unica per chi cerca ampi spazi in una zona riservata.

Riepilogo metrature:

Struttura principale 400 mq circa; terrazzo 45 mq circa; balconi 17 mq circa.

IL PRESENTE ANNUNCIO HA VALENZA PURAMENTE INFORMATIVA E NON CONTRATTRUALE.

Mostra tutto

Nelle vicinanze

Trasporto pubblico Trasporto pubblico
Ascoli Piceno
Ascoli Piceno
2,6 Km
Trasporto pubblico
1,5 Km
Via della Repubblica ITI
Via della Repubblica ITI
2,0 Km
San Filippo
San Filippo
2,2 Km
Marino del Tronto - Folignano
Marino del Tronto - Folignano
2,6 Km
Ricariche auto elettriche Ricariche auto elettriche
Monticelli Iris | EnelX
1,3 Km
Supermercato Tigre Monticelli | EnelX
1,8 Km
Eneldrive AP Commercio
2,2 Km
Scuole Scuole
Scuola Media Monticelli
1,3 Km
Scuola Elementare di Monticelli
1,5 Km
Istituto Tecnico Agrario Statale "Celso Ulpiani"
1,9 Km
Istituto Tecnico Statale per Attività Sociali "Giuseppe Mazzocchi"
2,0 Km
Istituto Tecnico Industriale Statale "Enrico Fermi"
2,0 Km
Farmacia Farmacia
Farmacia Comunale 3
1,5 Km
Parafarmacia Ipersimply
2,1 Km
Farmapoint Fortuna
2,1 Km
Farmacia Del Duca
2,1 Km
Farmacia Comunale Al Battente
2,2 Km
Ospedali Ospedali
Centro di Riabilitazione Santo Stefano "Venerabile Marcucci"
1,4 Km
Ospedale "Costanzo e Gaetano Mazzoni"
1,5 Km
Casa di Cura San Giuseppe
1,5 Km
Casa di Cura Villa San Marco
2,9 Km
Supermercati Supermercati
Macelleria Santini Antonio
1,5 Km
La Bottega di Bruno
1,5 Km
Maxi Coal
1,6 Km
Bottega di Bruno
1,6 Km
Maxi Tigre
1,8 Km
Negozi Negozi
Pane Amore e Fantasia
1,6 Km
Forno da Pio
2,0 Km
Tezenis
2,0 Km
Calzedonia
2,1 Km
Camomilla Italia
2,1 Km
Bar Bar
Circolo Acli
1,3 Km
Bar
1,5 Km
Papillon
1,5 Km
Tiger Bar
1,6 Km
Bar Il cacciatore
1,6 Km
Ristoranti Ristoranti
Green Park Circolo Sportivo Fondazione Carisap
890 m
Villa Angelini
1,6 Km
Pizzeria Mondo Pizza
1,6 Km
Pizzeria O Vesuvio
1,9 Km
Maracais Hostaria
1,9 Km
Mostra tutto

Caratteristiche

Rif.:
61154059
Piano:
3 di 3 (Piano su più livelli)
Balconi:
1
Terrazzi:
1
Camere da letto:
10
Arredamento:
Assente
Mostra tutto
Prezzo Prezzo
€ 280.000
Rata mutuo Rata mutuo
€ 1.330 / mese
Proponi il tuo prezzoProponi il tuo prezzo

Classe Energetica

G
G
G
G
G
G
G
G
G
Riscaldamento:
Autonomo
Tipo impianto:
A radiatori
Tipo alimentazione:
Metano

Ti interessa visionare l'immobile?

Fissa un appuntamento  Fissa un appuntamento

Richiedi informazioni

Clicca su Leggi per aprire l'informativa
* Questi campi sono obbligatori

Calcola il tuo mutuo

Semplice e senza impegno
Anticipo

( % )
Mutuo

( % )

pochi semplici passi

inserisci i tuoi dati
Questionario completato
Grazie per aver richiesto un appuntamento senza impegno con un nostro Consulente del Credito e Assicurativo.

Hai inserito correttamente tutti i dati necessari e a breve riceverai una e-mail con un link da convalidare per inviare i tuoi dati.
Affiliato
Studio Piceno Srl
Via Napoli, 18 63100 Ascoli Piceno (AP)

Il nostro staff


  • Vittorio Alfieri
    Affiliato
Via Napoli, 18 63100 Ascoli Piceno (AP)
Zona: Ascoli Piceno
Mostra su mappa
Orari: lunedì - venerdì: 09.00-12.45 / 15.30-19.45 sabato: 09.00-12.45 domenica: chiuso
Affiliato
Studio Piceno Srl
Via Napoli, 18 63100 Ascoli Piceno (AP)

2026 Tecnocasa Franchising S.p.A. - P. IVA 08365160152 - Via Monte Bianco 60/A 20089 Rozzano (MI). Ogni agenzia ha un proprio titolare ed è autonoma. Privacy policy | Policy utilizzo | Cookie policy