Porzione di bifamiliare in vendita

Ascoli Piceno, Viale Medaglie D'Oro - Colle San Marco
Informazioni in agenzia
5 locali 5 locali
213 Mq 213 Mq
2 bagni 2 bagni

Porzione di bifamiliare in vendita

Ascoli Piceno, Viale Medaglie D'Oro - Colle San Marco

Descrizione annuncio

A San Marco, proponiamo in vendita una porzione di bifamiliare che unisce privacy ed ampi spazi verdi.

L’ingresso alla proprietà avviene tramite un viale pavimentato che conduce alla casa, circondata da una corte alberata che avvolge l’abitazione su tre lati. Un ambiente esterno riservato e piacevole.

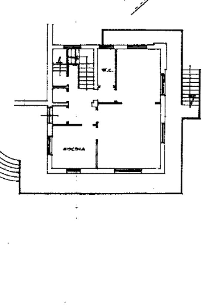
All’interno, la zona giorno al piano terra è pensata per offrire ambienti luminosi e funzionali: troviamo infatti un comodo e arioso soggiorno, una cucina separata dotata di camino, completa il piano un bagno di servizio.
Un unico ampio balcone va a servire soggiorno e cucina, offrendo un' ottima visuale sulla corte alberata.

Al primo piano si sviluppa la zona notte, anch’essa completamente balconata, composta da tre camere da letto ben proporzionate e da un secondo bagno.

Scendendo al piano S1, tramite una scala interna nascosta da una porta, si accede a un ampio rustico che comprende garage e sala caldaia, rendendo l’intero piano estremamente funzionale.

Questa abitazione rappresenta una soluzione ideale per chi cerca una casa indipendente, con spazi interni ben organizzati e un importante valore aggiunto dato dalle aree esterne.

IL PRESENTE ANNUNCIO HA VALENZA PURAMENTE INFORMATIVA E NON CONTRATTUALE.

Mostra tutto

Nelle vicinanze

Trasporto pubblico Trasporto pubblico
Ascoli Piceno
Ascoli Piceno
2,7 Km
Trasporto pubblico
1,8 Km
Via della Repubblica ITI
Via della Repubblica ITI
2,8 Km
San Filippo
San Filippo
2,6 Km
Ricariche auto elettriche Ricariche auto elettriche
Ascoli Piceno Piazza Roma | EnelX
2,4 Km
EnelX Punto Enel di Ascoli Piceno
2,8 Km
Ascoli Vellei | EnelX
2,9 Km
Scuole Scuole
Istituto Statale d'Arte
1,8 Km
Scuola di danza Miniera delle arti Tina Dance
2,0 Km
Scuola Media Statale "Luigi Luciani"
2,1 Km
Università degli Studi di Camerino - Facoltà di Architettura
2,3 Km
Istituto Preziosissimo Sangue
2,3 Km
Farmacia Farmacia
Farmacia Simonelli
2,4 Km
Farmacia Comunale 2
2,4 Km
Farmacia Righetti
2,5 Km
Parafarmacia Salus Picena
2,5 Km
Farmacia Ex Chiaretti di Rosati Marzia
2,5 Km
Ospedali Ospedali
Casa di Cura Villa San Marco
2,0 Km
Supermercati Supermercati
Tigre Amico
2,4 Km
Piaceri in tavola
2,4 Km
Coal
2,4 Km
Tigre
2,5 Km
Conad
2,5 Km
Negozi Negozi
Lolò
2,3 Km
Panificio Marozzi
2,3 Km
Biker's Brain
2,3 Km
Max
2,3 Km
La Panificatrice Ascolana 3
2,3 Km
Bar Bar
Bar
410 m
Bar Mediterraneo
2,0 Km
Bar 4 Ruote
2,2 Km
Bar Arizona
2,2 Km
Archicafè
2,2 Km
Ristoranti Ristoranti
Il Cacciatore
360 m
Hotel Ristorante Villa Sgariglia
640 m
Vecchio Casolare
820 m
C'era una volta
1,7 Km
Agriturismo le sorgenti
1,8 Km
Mostra tutto

Caratteristiche

Rif.:
61142055
Piano:
Su più livelli di 3
Totale piani:
3
Box:
1
Balconi:
2
Terrazzi:
1
Mostra tutto
Prezzo Prezzo
Informazioni in agenzia
Spese annue Spese annue
€ 0
Proponi il tuo prezzoProponi il tuo prezzo

Altre caratteristiche

Descrizione dei locali
Bagno Con Finestra

Classe Energetica

G
G
G
G
G
G
G
G
G
Anno di costruzione:
1970
Riscaldamento:
Autonomo
Tipo impianto:
A radiatori
Tipo alimentazione:
Metano

Ti interessa visionare l'immobile?

Fissa un appuntamento  Fissa un appuntamento

Richiedi informazioni

Clicca su Leggi per aprire l'informativa
* Questi campi sono obbligatori
Affiliato
Studio Piceno Srl
Via Napoli, 18 63100 Ascoli Piceno (AP)

Il nostro staff


  • Vittorio Alfieri
    Affiliato
Via Napoli, 18 63100 Ascoli Piceno (AP)
Zona: Ascoli Piceno
Mostra su mappa
Orari: lunedì - venerdì: 09.00-12.45 / 15.30-19.45 sabato: 09.00-12.45 / 15.30-18.30 domenica: chiuso
Affiliato
Studio Piceno Srl
Via Napoli, 18 63100 Ascoli Piceno (AP)

2025 Tecnocasa Franchising S.p.A. - P. IVA 08365160152 - Via Monte Bianco 60/A 20089 Rozzano (MI). Ogni agenzia ha un proprio titolare ed è autonoma. Privacy policy | Policy utilizzo | Cookie policy